КОМПЛЕКТНЫЕ РАСПРЕДЕЛИТЕЛЬНЫЕ УСТРОЙСТВА ТИПА К-59
Назначение.
Комплектные распределительные устройства (КРУ) типа К-5900 предназначены для приема и
распределения электрической энергии переменного трехфазного тока промышленной частоты 50Гц
напряжением 6 и 10 кВ. Шкафы КРУ типа К-5900 предназначены для работы внутри помещения, а
отдельно стоящий шкаф трансформатора собственных нужд предназначен для работы на открытом
воздухе. Распредустройства наружной установки комплектуются из ячеек К-5900, установленные в
модульном здании.
Основные технические характеристики

Конструкция ячейки К-59
Состав КРУ серии К-5900 определяется конкретным заказом, комплект поставки соответствует
комплектовочной ведомости.
Кроме того, в состав КРУ могут входить:
- шинные мосты между двумя рядами ячеек, расположенных в одном помещении;
- шинные вводы в ближний и дальний ряды распределительного устройства с прямой и обратной
фазировкой;
- переходные шкафы для стыковки с КРУ других серий;
- кабельные лотки для подводки к ряду КРУ контрольных кабелей и проводов вспомогательных
цепей;
-клеммный шкаф для подвода контрольных кабелей к КРУ;
- отдельностоящий шкаф ТСН.
Модульное здание комплектуется системой освещения, вентиляцией (по заказу), системой
автоматизированного отопления.
Обслуживание камер переднего и заднего фасадов осуществляется из коридоров обслуживания.
Структура условного обозначения комплектных распределительных устройств типа К-59

Климатическое исполнение по ГОСТ 15150
Номинальный ток отключения выключателя,
встроенного в КРУ, кА (для шкафов ТСН,
максимальная мощность трансформатора, кВА )
Номинальный ток ячейки, А (для шкафов ТН,
ТСН - номинальное напряжение, кВ)
Тип встраиваемого выключателя:
элегазовый - буква “Э”, вакуумный - буква “В”;
Номер схемы по сетке схем соединений главных цепей;
Ячейка (шкаф) серии К-59;
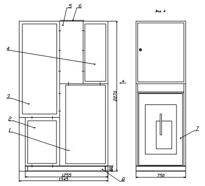
Габаритные и установочные размеры ячейки типа К-59

1 – шкаф выкатного элемента (выключателя);
2 – отсек сборных шин;
3 – отсек ввода;
4 – релейный шкаф;
5 – канал выброса;
6 – клапан;
7 – выкатная тележка с выключателем;
8 – основание.
